Villa · REF. NB-79881

Torreblanca · Torrevieja

Villa · REF. NB-79881

Torreblanca · Torrevieja

  • Metros

    238m2
  • Parcela

    420m2
  • Habitaciones

    4
  • Baños

    4
  • Piscina

Características

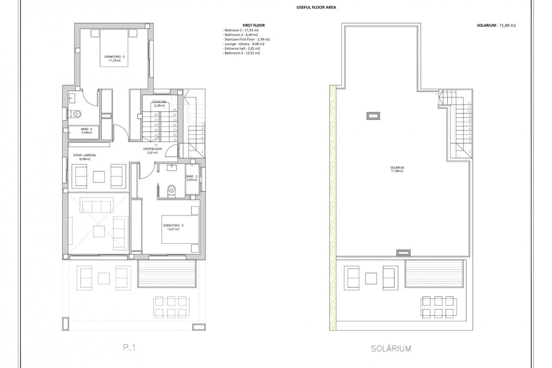
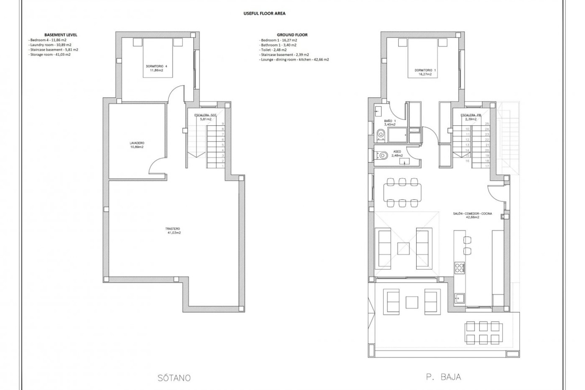
Check Habitaciones: 4
Check Baños: 4
Check Construidos: 238m2
Check Parcela: 420m2
Check Piscina:
Check Garden
Check Gated
Check Number of Parking Spaces: 1
Check Near Schools
Check Near Commercial Center
Check Solarium: Yes
Check Air Conditioning: Pre-Installed
Check Near Trees
Check Near Bus Route
Check Location: Coastal
Check Under-Build / Basement
Check Double Bedrooms: 4
Check Beach: 1200 Meters
Check Parking - Space
Check Useable Build Space: 180 Msq.
Check Terrace: 102 Msq.
Check Storage / Trastero
Check Private pool

Descripción

Localización

Spanish Property Listings

Realizar una consulta

Responsable del tratamiento: , Finalidad del tratamiento: Gestión y control de los servicios ofrecidos a través de la página Web de Servicios inmobiliarios, Envío de información a traves de newsletter y otros, Legitimación: Por consentimiento, Destinatarios: No se cederan los datos, salvo para elaborar contabilidad, Derechos de las personas interesadas: Acceder, rectificar y suprimir los datos, solicitar la portabilidad de los mismos, oponerse altratamiento y solicitar la limitación de éste, Procedencia de los datos: El Propio interesado, Información Adicional: Puede consultarse la información adicional y detallada sobre protección de datos Aquí.
WhatsApp