Pueblo · Benijofar
Pueblo · Benijofar
Mètres
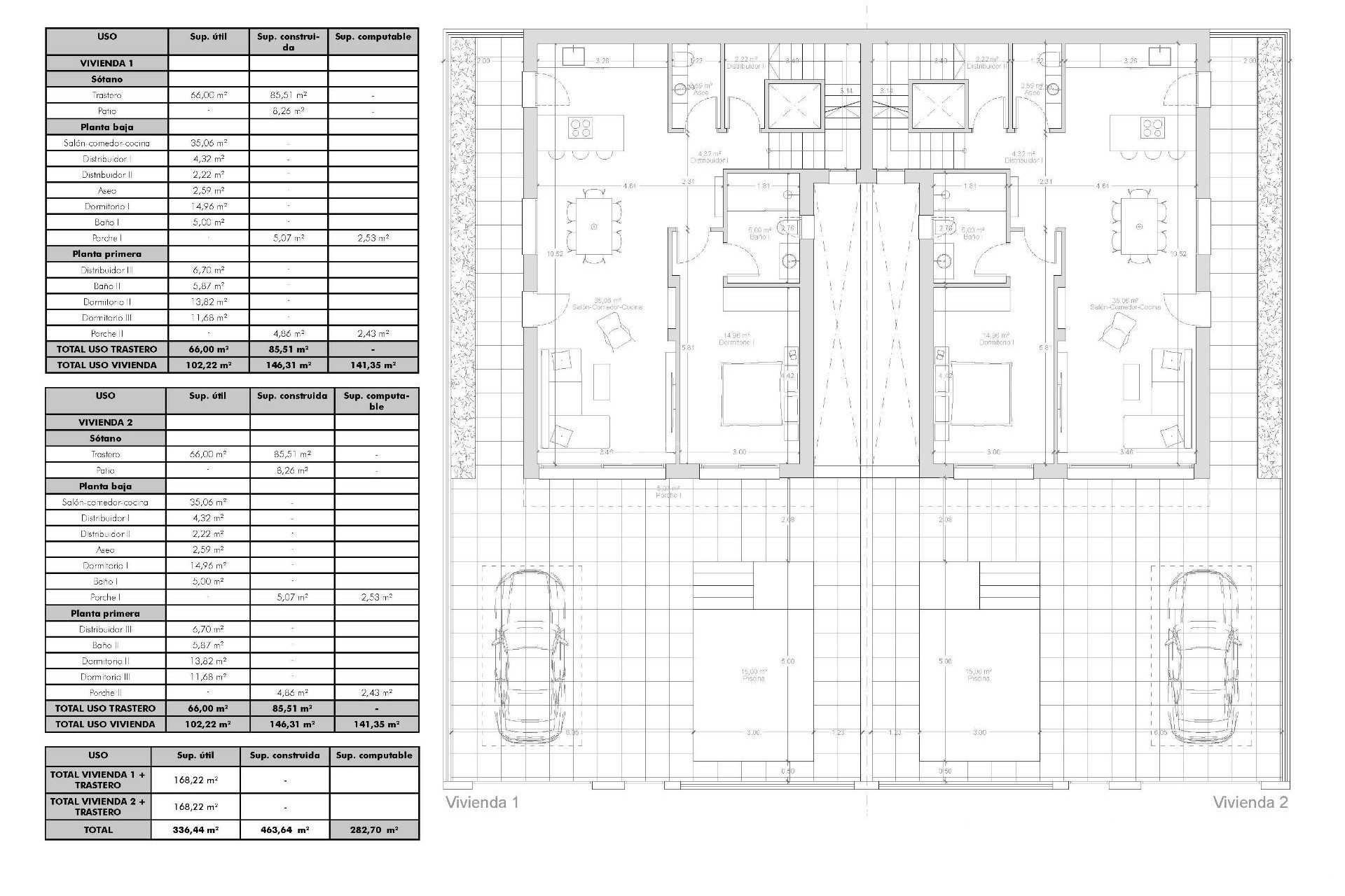
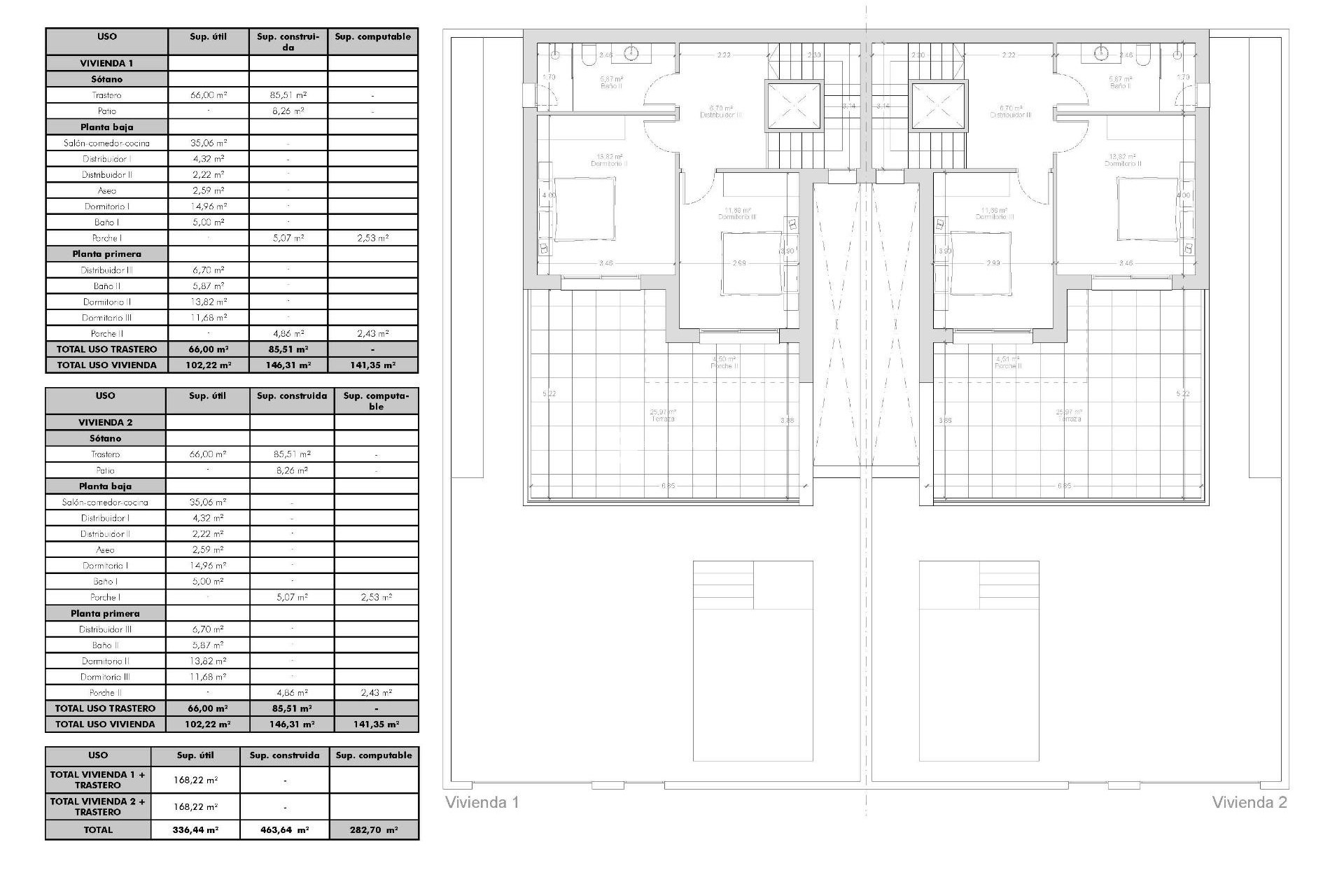
141m2Intrigue
200m2Chambres
3Salles de bains
3Piscine
OuiVillas jumelées de luxe neuves à Benijófar – Costa Blanca Living Emplacement privilégié à Benijófar Ces villas jumelées exclusives de construction neuve sont situées dans la charmante ville de Benijófar, l'une des zones les plus prisées de la Costa Blanca. Connue pour son mélange de tradition et de modernité, Benijófar offre tous les services essentiels, notamment des supermarchés, des pharmacies, des banques, des restaurants et des commerces de proximité. Le complexe est stratégiquement situé à seulement 10 km des plages dorées de Guardamar del Segura et à 30 km de l'aéroport d'Alicante, ce qui en fait un emplacement idéal pour une résidence permanente ou des séjours de vacances. Conception spacieuse et moderne Chaque villa a été conçue dans un style contemporain, optimisant l'espace et la lumière naturelle. La distribution comprend trois chambres (une au rez-de-chaussée et deux au premier étage) et trois salles de bains (dont une au sous-sol), ce qui les rend parfaites pour les familles et les invités. Le salon ouvert avec coin repas s'ouvre sur la cuisine entièrement équipée, créant un environnement chaleureux et fonctionnel. De grandes fenêtres renforcent la luminosité dans toute la maison. Caractéristiques haut de gamme et extras Ces villas se distinguent par leurs finitions de haute qualité et leurs détails soignés : Sous-sol de 66 m² avec salle de bains, galerie et buanderie Piscine privée, solarium avec barbecue et évier Cheminée décorative dans le salon Parking privé sur le terrain Ascenseur du sous-sol au dernier étage 3 panneaux solaires photovoltaïques et éclairage LED dans toute la maison Climatisation préinstallée Salles de bains entièrement équipées avec meubles et parois de douche Superficie des terrains à partir de 200 m2 Mode de vie et environnement Benijófar allie le charme d'un village espagnol traditionnel à la commodité des services modernes. Les amoureux de la nature apprécieront le parc naturel voisin, idéal pour la randonnée et le vélo. Pour les amateurs de golf, le club de golf La Marquesa se trouve à seulement 5 km, tandis que plusieurs autres parcours de premier ordre sont situés dans un rayon de 15 km. Les familles peuvent se rendre aux parcs aquatiques de Rojales (4 km) et Torrevieja (12 km), ou explorer la ville animée de Torrevieja, à seulement 12 km. Excellente connectivité Les villas bénéficient d'un accès facile aux autoroutes N-332 et AP-7, assurant des liaisons rapides vers Alicante, Elche, Orihuela Costa et Murcie. La région offre un équilibre parfait entre tranquillité, commodités et accessibilité. Votre maison de rêve sur la Costa Blanca Découvrez le luxe, le confort et la vie méditerranéenne dans ces superbes villas neuves à Benijófar. Contactez-nous dès aujourd'hui pour obtenir plus de détails et organiser une visite de votre future maison.