Camino del Puerto · Guardamar del Segura
Camino del Puerto · Guardamar del Segura
Meters
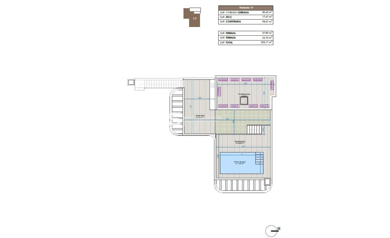
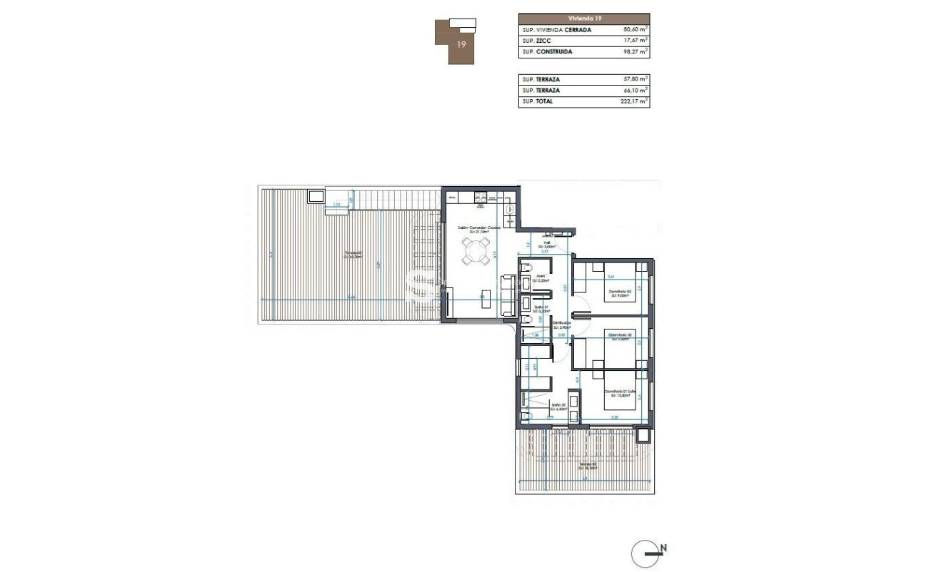
98m2Bedrooms
3Baths
3Pool
YesNew Build Apartments in Guardamar del Segura – Modern Living Just 1.4 km from the Beach Discover a new residential development in Guardamar del Segura, Alicante, offering just 19 exclusive, modern homes designed for comfortable, contemporary living on the Costa Blanca. Ideally located just 1.4 km from the beach and a short walk from the town center, this development combines style, practicality, and a prime coastal setting. Exclusive Residential Project with Limited Availability This boutique development features 2 and 3-bedroom apartments with a range of layouts to suit different needs: Ground-floor units with spacious private terraces Mid-level apartments with generous balconies or open terraces. A spectacular penthouse with a private solarium and swimming pool Each property showcases elegant, curved architectural lines, glass railings, and modern finishes—ideal for both year-round residence or a luxurious holiday retreat. Premium Finishes and Energy-Efficient Features Designed for comfort and sustainability, each home includes: Reinforced front door for added security Fully furnished kitchen with appliances included Energy-efficient aerothermal system for hot water Private parking space included in the price The building also features a communal swimming pool and landscaped garden areas, perfect for enjoying the sunny Mediterranean climate. Prime Location in Guardamar del Segura Situated in a well-connected and vibrant part of Guardamar, this development provides easy access to nature, beaches, and essential services. Residents enjoy proximity to supermarkets, restaurants, medical centers, parks, and the town’s famous pine forest and dunes. Key distances: Guardamar town center – 1 km Closest beach – 1.4 km Marina – 2 km Reina Sofía Park – 1.5 km La Marquesa Golf (Ciudad Quesada) – 9 km Habaneras Shopping Center (Torrevieja) – 13 km Alicante-Elche Airport – 33 km Public transport connections include direct bus lines to Alicante and Torrevieja, offering easy access without the need for a car. Secure Your Apartment on the Costa Blanca Whether you’re looking for a permanent residence, vacation property, or smart investment, this new development in Guardamar del Segura is the perfect choice. Contact us today to learn more or reserve your new home by the sea.