Cala L Andrago · Moraira_Teulada
Cala L Andrago · Moraira_Teulada
Metros
242m2Parcela
885m2Habitaciones
3Baños
2Piscina
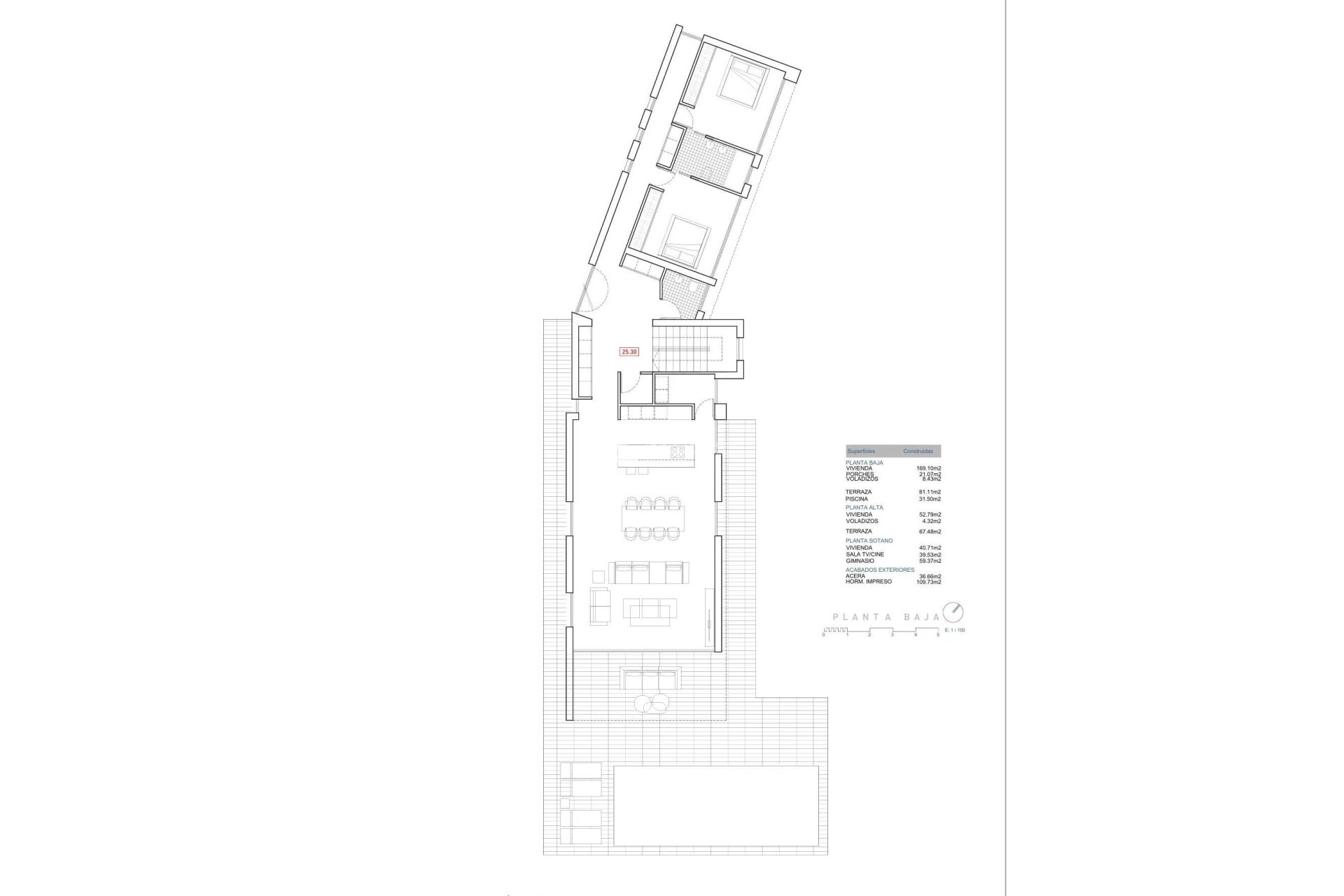
SíModerna villa de nueva construcción cerca del mar en Moraira Esta moderna villa de lujo presenta un diseño minimalista y elegante, con líneas limpias y una armoniosa combinación de materiales naturales como madera, piedra y vidrio. A 5 minutos a pie del mar (300m). Sus amplios ventanales de suelo a techo y puertas correderas permiten una integración fluida entre los espacios interiores y exteriores, inundando la vivienda de luz natural. La zona exterior cuenta con un elegante salón cubierto, una terraza solárium y una piscina rodeada de un jardín paisajístico. La paleta de colores neutros y la arquitectura contemporánea crean un ambiente sofisticado y acogedor, ideal para el descanso y el entretenimiento. Además, existe la posibilidad de añadir un sótano por un costo adicional, ofreciendo espacio extra para adaptarlo a necesidades específicas. Cerca de Playa La Galera y con un supermercado cerca. La villa se distribuye en dos plantas e incluye Salón y comedor diáfanos con acceso directo a las terrazas y la piscina Cocina abierta totalmente amueblada 3 dormitorios y 2 baños, además de 1 aseo de invitados Lavadero y despensa Jardín privado, terrazas y zona de piscina Suite principal privada y estilo de vida al aire libre La planta baja incluye dos dormitorios, un baño, un aseo y amplias zonas comunes. En la planta superior, el dormitorio principal ofrece un refugio privado con baño en suite, un amplio vestidor y una terraza de 67 m2, perfecta para disfrutar de las vistas del amanecer y la brisa mediterránea. El espacio exterior ha sido diseñado para el relax, con una piscina privada, terrazas para tomar el sol y un entorno exuberante que garantiza la tranquilidad y la privacidad. Ubicación privilegiada en la Costa Blanca Norte Moraira ofrece un estilo de vida excepcional con hermosas playas, rutas de senderismo, puertos deportivos, campos de golf y restaurantes gourmet.