Cala L Andrago · Moraira_Teulada
Cala L Andrago · Moraira_Teulada
Mètres
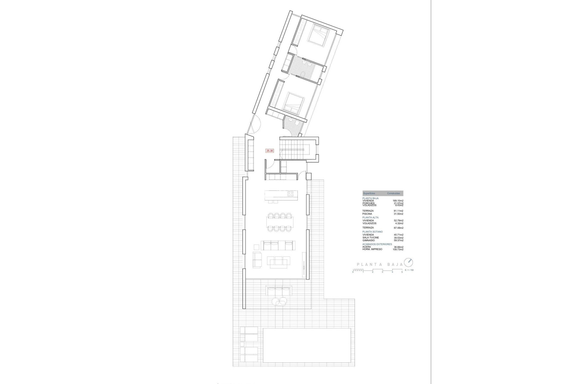
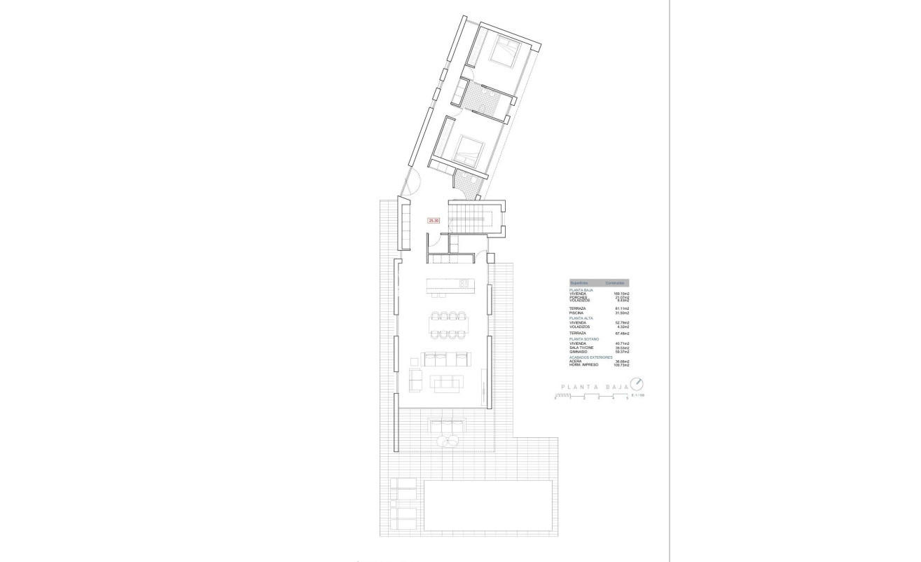
242m2Intrigue
885m2Chambres
3Salles de bains
2Piscine
OuiVilla moderne de luxe récemment construite près de la mer à Moraira Style contemporain et design minimaliste Cette villa moderne récemment construite à Moraira se distingue par son architecture minimaliste, ses lignes élégantes et une combinaison harmonieuse de matériaux tels que la pierre naturelle, le bois et le verre. À seulement 300 mètres de la mer, elle offre une ambiance lumineuse et sophistiquée, avec de grandes baies vitrées qui relient parfaitement l'intérieur aux espaces extérieurs et permettent de profiter d'une lumière naturelle abondante tout au long de la journée. Espaces ouverts et vie extérieure méditerranéenne La maison est répartie sur deux étages et offre des pièces ouvertes conçues pour le confort et le style de vie méditerranéen. Le salon et la salle à manger ouverts s'ouvrent directement sur les terrasses et la piscine privée, créant un espace parfait pour se détendre, prendre le soleil ou profiter de soirées en plein air. L'espace extérieur offre un élégant salon couvert, une terrasse solarium et un jardin soigné qui garantit intimité et tranquillité. Distribution fonctionnelle et finitions haut de gamme Cette villa dispose de 3 chambres, 2 salles de bains et 1 toilette pour invités. Au rez-de-chaussée se trouvent deux chambres, une salle de bains, des toilettes et de vastes espaces communs, dont une cuisine ouverte entièrement équipée, une buanderie et un cellier. À l'étage supérieur se trouve la suite principale, un espace privé avec salle de bains attenante, dressing et une grande terrasse de 67 m² où vous pourrez profiter d'une vue dégagée et du charme de l'environnement naturel. Il est possible d'ajouter un sous-sol sur demande, idéal pour créer une salle de sport, une salle de cinéma ou un espace de rangement supplémentaire. Emplacement privilégié à Moraira Située dans un quartier résidentiel calme, à proximité de la plage de La Galera et avec un supermarché et des services à quelques pas, cette propriété offre une excellente connexion avec les principaux points d'intérêt de la Costa Blanca Nord. Moraira se distingue par son charme méditerranéen, ses plages aux eaux cristallines, son port de plaisance, ses sentiers de randonnée et ses restaurants gastronomiques. Points d'intérêt à proximité : Aéroport d'Alicante 92 km Aéroport de Valence 125 km Club de golf Ifach 4 km Port de plaisance de Moraira 2 km Une opportunité unique sur la Costa Blanca Cette villa est parfaite comme résidence permanente, refuge de vacances ou investissement haut de gamme dans l'une des zones les plus exclusives de la Méditerranée. Contactez-nous dès aujourd'hui pour plus d'informations et planifiez votre visite.